大型工装小型工装最新案例
查看案例 找设计师
地址: 武汉市硚口区汉西一路南国大家装H座23楼(月星家居楼上)
传真: 027-83514241
电话: 13429875838 ,13628666832

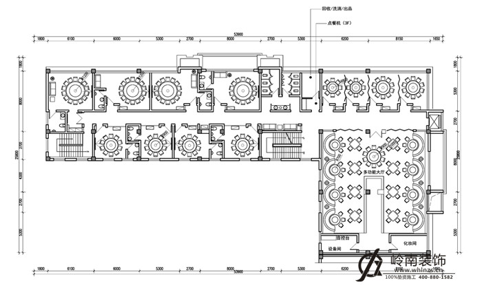
桂玉芳饭店装修设计案例

网站首页 > 家装案例 > 桂玉芳饭店装修设计案例

桂玉芳饭店装修设计案例

风格:公共商业户型:小型公装金额:500W以下面积:1000-5000平米

岭南装饰首席设计师:彭浪初

武汉岭南装饰饭店装修设计

功能定位:餐饮、休闲、聚会
主材:大理石、生态木、人造石、复合地板、壁纸、壁画、瓷砖、乳胶漆、吊顶等
风格说明:整个设计都以东方元素为主,穿插一些现代潮流元素,使得整个饭店都充满着古韵气息,并且不失时尚感,亦如包容、内敛而低调神秘的个性一般,让客户体会到静水流深的意境。元素混搭是现代饭店的主流,如何把握材质的搭配、场所的组合、意境的模拟是这个作品的关键之处。
饭店装修设计案例效果图饭店装修设计案例效果图饭店装修设计案例效果图饭店装修设计案例效果图饭店装修设计案例效果图施工图案例施工图案例

 

收缩
  • 在线咨询
  • 点击这里给我发消息